Балтия с гаражом сбоку
Общая площадь - 262,5 м2
Площадь пятна застройки - 176 м2
Габариты дома - 20,0 x 8,8м
Высота конька от уровня чистовой планировки грунта - 8,15м
Проект Балтия со встроенным гаражом с заездом с боку здания.
Общая площадь - 262,5 м2
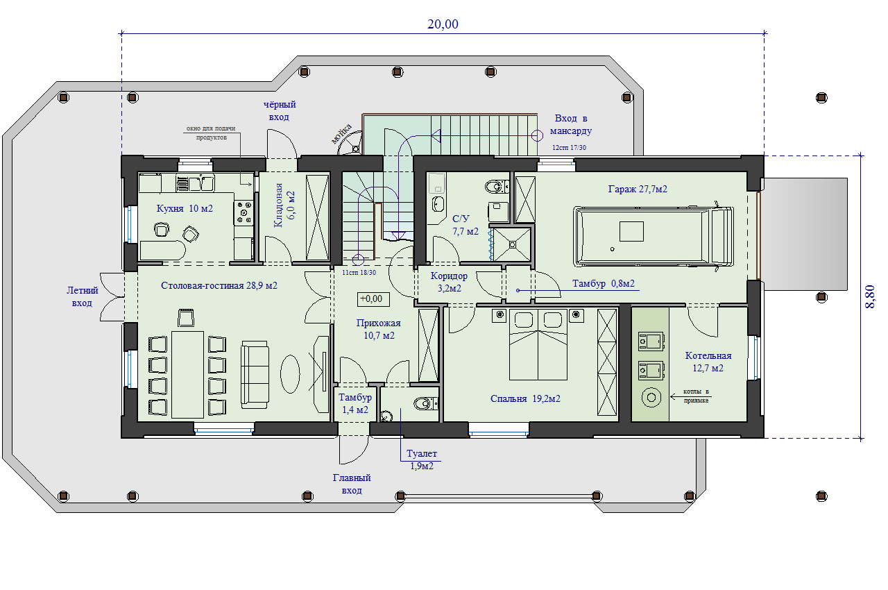
План первого этажа с кладовой
Общая площадь этажа 130,2м2
Особенности планировки:
въезд в гараж сбоку здания.
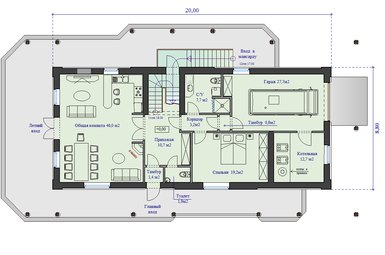
План первого этажа с общей комнатой
Общая площадь этажа 131,3м2
Особенности планировки:
общая кухня - гостиная - столовая.
План мансарды
Общая площадь этажа 132,3м2
Особенности планировки: