Балтия оптима
Общая площадь - 144,5 м2
Площадь пятна застройки - 106,5 м2
Габариты дома - 12,1 x 8,8м
Высота конька от уровня чистовой планировки грунта - 8,15м
--
Фасады
Разрезы
План первого этажа
Общая площадь этажа 72,2м2
Особенности планировки:
Независимый от гостиной вход на жилую мансарду.
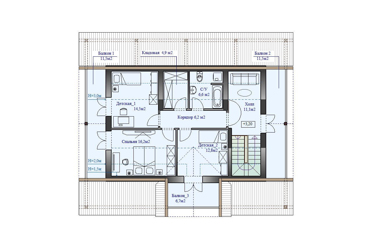
План мансарды
Общая площадь этажа 72,3м2
Особенности планировки:
Замкнутый контур отопления жилого блока ограниченного дверью в коридор.