logo

img

Дача с банькой

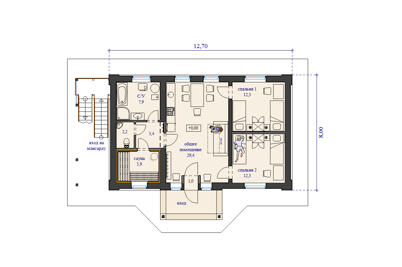
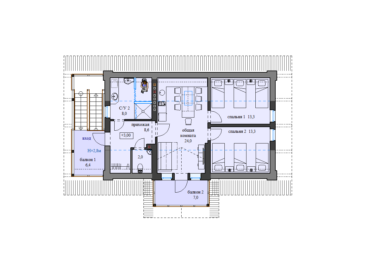
Общая площадь помещений - 143,6 м2
Площадь пятна застройки - 97 м2
Габариты дома (капитальная часть) - 12,7 x 8,0м
Высота конька - 8,1 м

Даны варианты использования наземного этажа для постоянного проживания - с помещениями разной площади - спальней и кабинетом, а так же с одинаковыми по площади помещениями для использования всего дома для туризма и отдыха - чтобы вместить наибольшее количество людей.

Лестница вынесенная за контуры здания делает его меньше и улучшает пожарную безопасность. Лестничные марши и площадки делаются не из дерева, а из стали и бетонируются - пути эвакуации должны быть негорючие. При необходимости уличный лестничный марш можно прикрыть от осадков прозрачной плёнкой называемой "мягкими окнами".

Яндекс.Метрика