Изба - Куб гранд (с двойным гаражом и мансардой) Общая площадь - 272,3 м2 Площадь пятна застройки - 223,4 м2 Габариты дома - 14,80 x 15,40 м Высота конька от уровня чистовой планировки грунта- 11,95 м
Проект разработан в 2016 г.
Фасады
Визуализация варианта с эксплуатируемой кровлей
Разрез
План первого этажа с жилой комнатой
Общая площадь этажа 179,4 м2
Особенности планировки:
План первого этажа с изолированной жилой комнатой
Общая площадь этажа 178,6 м2
Особенности планировки:
План первого этажа с изолированной кухней
Общая площадь этажа 179,4 м2
Особенности планировки:
План второго этажа для многодетной семьи.
Общая площадь этажа 93,0 м2
Особенности планировки:
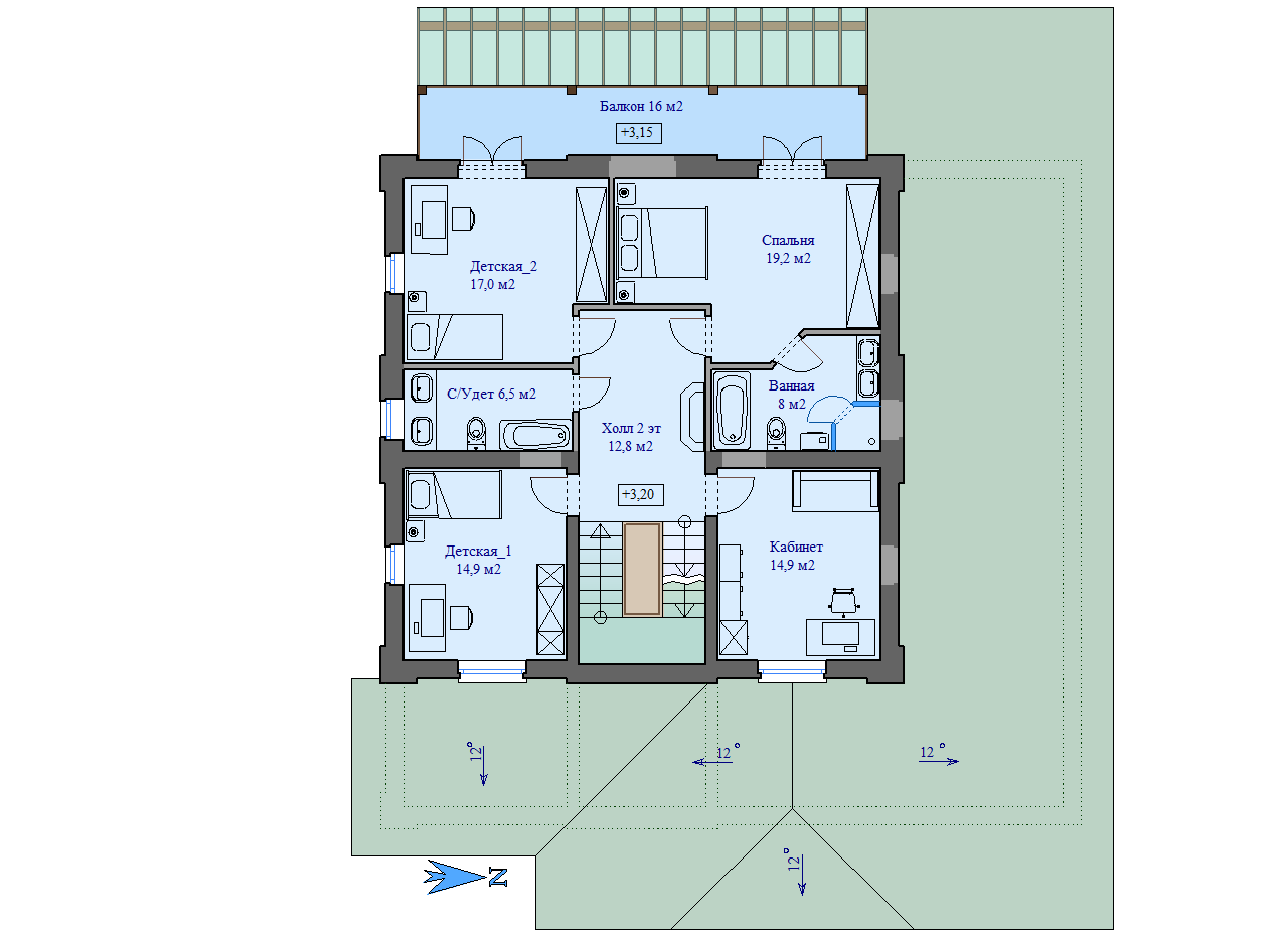
План второго этажа с большой детской комнатой.
Общая площадь этажа 93,5 м2
Особенности планировки:
Планировка второго этажа с глубоким холлом.
Общая площадь этажа 93,3 м2
Особенности планировки:
План мансарды
Общая площадь этажа 91,9 м2
Особенности планировки: