Лум с мансардой
Общая площадь - 148,8 м2
Площадь пятна застройки - 132 м2
Габариты дома - 15,00 x 8,80м
Высота конька от уровня чистовой планировки грунта - 6,15 м
проект создан в 2016 году обновлен в 2021 году.
Для создания минимально необходимого жилого объёма мансарды был увеличен угол наклона крыши, и уменьшена высота первого (каменного) этажа, что дало возможность сделать терпимую по комфорту лестницу. Мансарда выполнена по каркасной технологи и не предназначена для постоянного проживания взрослых или пожилых людей. В ней возможно разместить на время гостей или предоставить её для проживания детей/подростков нетребовательных к комфорту, и готовых без проблем перемещаться по компактной лестнице.
Фасады
Разрез
План первого этажа
Общая площадь этажа 96,0 м2
Особенности планировки:
Два санузла с душами и ванной для купания детей, мини сауна, место для стиральной машины в отдельной нише. Компактная, но терпимая (на грани комфорта) лестница с параметрами 15,6см высота ступени и 25 см ширина проступи на мансарду. Для того чтобы вписать лестницу с наименьшими потерями площади пришлось снизить высоту этажа с обычных (для моих проектов) 2,9 м до 2,65м. В силу этого мансарда оказывается доступной преимущественно для молодых и/или здоровых обитателей дома.
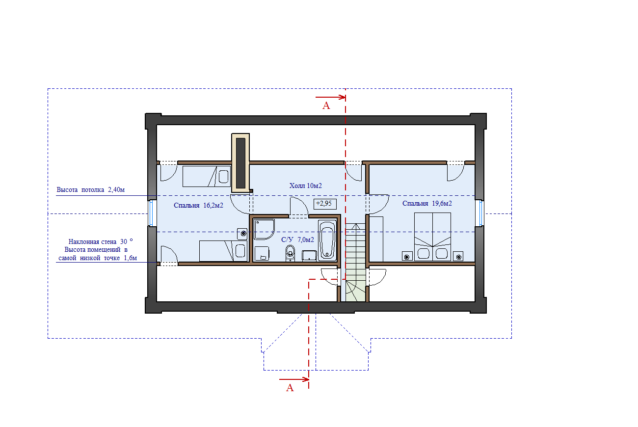
План мансарды
Общая площадь этажа 52,8 м2
Особенности планировки:
Этаж сделан по каркасной технологии (с пониженным по сравнению с первым этажом) уровнем акустического и теплового комфорта. С наклонными стенами начинающимися с высоты от 1,6м и высотой потолков 2,4м. Мансарда может использоваться для временного размещения гостей и родственников, или проживания здоровых и бодрых членов семьи не требовательных к комфорту. В необходимых местах в крышу можно встроить мансардные окна - на планах они не указаны.